-
4
-
2
-
2
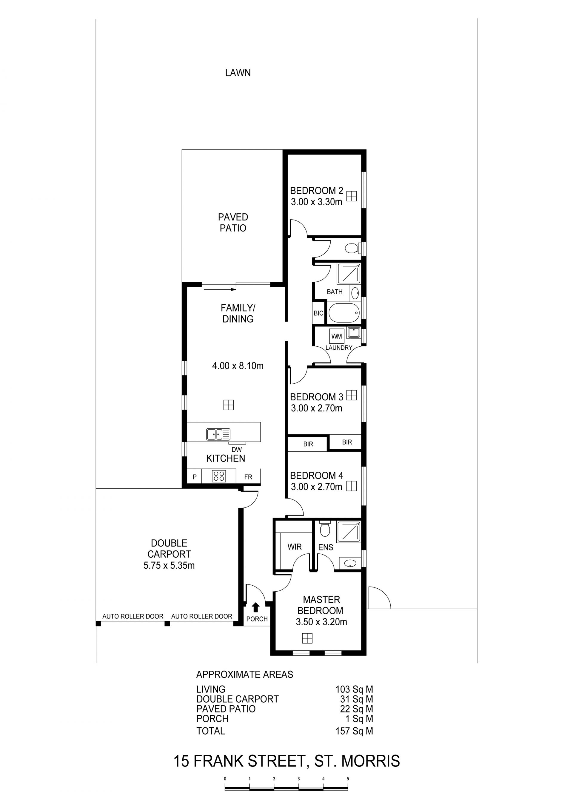
15 Frank Street, St Morris SA 5068
Style and elegance at a price to make you feel totally at home – Room for boat and caravan in dedicated space- Approx. 620 sqm Allotment
Call us today to schedule your private viewing of this home- no opens scheduled -By appointment only.
Located in one of Adelaide’s most prestigious, tightly held, inner suburbs, in a beautiful tree line Street, this home is just moments from an array of shopping and lifestyle amenities
One of the highlights of this property is its convenient and central location. Enjoy the convenience of living just a short distance to local shopping plus the vibrant hub of Norwood where you’ll find an array of cafes, restaurants, boutiques shopping, and entertainment options to explore, or travel to the city centre in mere minutes by car or by bus
Built in 2018, the architecture of the home has a clean, modern feel, which is balanced by the curated and collected decor.
A feature tiled entry foyer sets the scene for this lovely 4-bedroom family home.
The master bedroom suite is positioned to the front of the home taking in views over the front garden, a beautiful street scape and is complimented with a generous size walk in robe plus light and bright ensuite bathroom.
The children’s rooms are positioned in their own private passageway, close to a three-way bathroom that caters for many functions at once.
The heart of this home is undoubtedly the spacious open-plan kitchen / family living / dining area located towards the rear of the property, with glass sliding door providing views as well as access to the generous size rear garden, giving the effect of a seamless connection between the indoor and the outdoors.
Other highlights of this property include, ducted reverse cycle heating and cooling, double width carport under the main roof with internal access plus automated sliding garage doors, garden shed, additional space for a caravan, boat etc. set to the right-hand side of the property.
Ideal tenants prepared to negotiate extension to their fixed term lease for a further fixed term if so desired, as their current lease expires on the 13/05/2025 then has been extended on a Periodic tenancy as of the 14/05/2025
For further details please phone Justin Gall on (08) 8333 0000 or mobile 0418 848 309 Justin Gall Real Estate Pty Ltd RLA 2074
Located in one of Adelaide’s most prestigious, tightly held, inner suburbs, in a beautiful tree line Street, this home is just moments from an array of shopping and lifestyle amenities
One of the highlights of this property is its convenient and central location. Enjoy the convenience of living just a short distance to local shopping plus the vibrant hub of Norwood where you’ll find an array of cafes, restaurants, boutiques shopping, and entertainment options to explore, or travel to the city centre in mere minutes by car or by bus
Built in 2018, the architecture of the home has a clean, modern feel, which is balanced by the curated and collected decor.
A feature tiled entry foyer sets the scene for this lovely 4-bedroom family home.
The master bedroom suite is positioned to the front of the home taking in views over the front garden, a beautiful street scape and is complimented with a generous size walk in robe plus light and bright ensuite bathroom.
The children’s rooms are positioned in their own private passageway, close to a three-way bathroom that caters for many functions at once.
The heart of this home is undoubtedly the spacious open-plan kitchen / family living / dining area located towards the rear of the property, with glass sliding door providing views as well as access to the generous size rear garden, giving the effect of a seamless connection between the indoor and the outdoors.
Other highlights of this property include, ducted reverse cycle heating and cooling, double width carport under the main roof with internal access plus automated sliding garage doors, garden shed, additional space for a caravan, boat etc. set to the right-hand side of the property.
Ideal tenants prepared to negotiate extension to their fixed term lease for a further fixed term if so desired, as their current lease expires on the 13/05/2025 then has been extended on a Periodic tenancy as of the 14/05/2025
For further details please phone Justin Gall on (08) 8333 0000 or mobile 0418 848 309 Justin Gall Real Estate Pty Ltd RLA 2074
