-
4
-
2
-
4
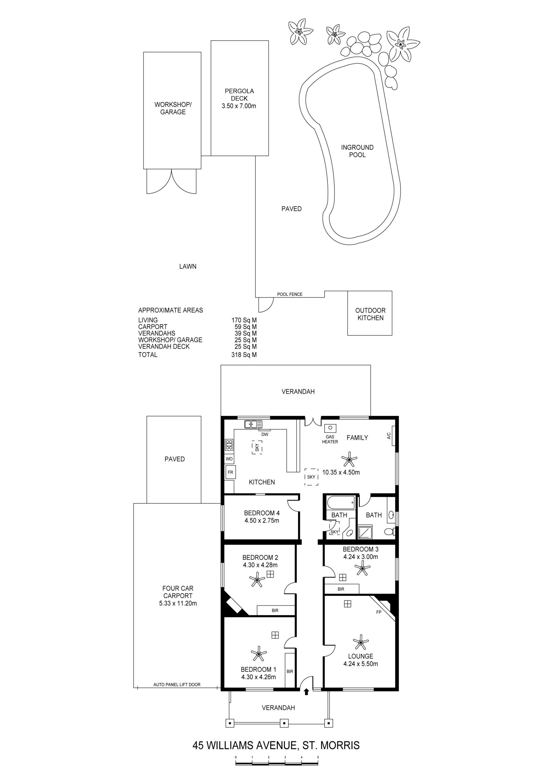
45 Williams Avenue, St Morris SA 5068
Stone Fronted Bungalow Offering Timeless Appeal set on 919 sqm Allotment Offering 4 Bedrooms Formal Plus Informal Living – Resort Style Pool
A Character stone fronted bungalow brimming with all the charm of yesteryear with original features such as polished timber floors, fireplaces plus picture rails intact., set on aprox. 919 sqm of land ideally located in a beautiful tree lined Avenue, reflecting a timeless elegance, enviably located in this near city location within close proximity to all facilities
Attributes include entrance hall with polished timber floor, leading to a lovely spacious Formal lounge with glazed brick fireplace overlooking the pretty front garden, The ideal place for entertaining, when friends gather.
There are 4 ample size bedrooms, 3 with the added benefit of built-in robes.
Designed as the heart of the home, the kitchen is a delight with every convenience built in, more than just a kitchen, it's the heart of the home where you can talk and cook as well, featuring an abundance of built in cupboards and bench top space, double pantry, wall mounted oven, gas cook top with range hood, dishwasher plus dual bowel sink with filtered water tap plus central island bar (moveable) would take a 6-8 setting dining table if desired. More than just a cooking space it’s a hub for socialising, entertaining and creating.
Adjoining the kitchen is the stunning open plan informal living area with feature gas log look fireplace opening directly to the full-length bull nose verandah and outdoor entertaining space via bi fold glass and timber doors which emphasises a seamless connection between the indoor and the outdoors.
To complete the offering, this home also offers a main bathroom, a second wc, plus 2nd shower with laundry, ducted evaporative air conditioning, Split system R C air Conditioning, ceiling fans, double width 4 car carport with drive through access to the rear yard leading to freestanding garage all secured behind an automated panel lift roller door. Resort style solar heated in ground swimming pool complimented with freestanding shelter set amidst lovingly tendered gardens incorporating an alfresco outdoor BBQ area, 2 x 1000 litre rain water tanks plus solar panels..
Expression Of Interest By 5th September 2022 at 5pm (unless Sold Prior)
For further details please phone Justin Gall on 0418 848 309 or 08 8333 0000.
Justin Gall Real Estate Pty Ltd
RLA 2074
Attributes include entrance hall with polished timber floor, leading to a lovely spacious Formal lounge with glazed brick fireplace overlooking the pretty front garden, The ideal place for entertaining, when friends gather.
There are 4 ample size bedrooms, 3 with the added benefit of built-in robes.
Designed as the heart of the home, the kitchen is a delight with every convenience built in, more than just a kitchen, it's the heart of the home where you can talk and cook as well, featuring an abundance of built in cupboards and bench top space, double pantry, wall mounted oven, gas cook top with range hood, dishwasher plus dual bowel sink with filtered water tap plus central island bar (moveable) would take a 6-8 setting dining table if desired. More than just a cooking space it’s a hub for socialising, entertaining and creating.
Adjoining the kitchen is the stunning open plan informal living area with feature gas log look fireplace opening directly to the full-length bull nose verandah and outdoor entertaining space via bi fold glass and timber doors which emphasises a seamless connection between the indoor and the outdoors.
To complete the offering, this home also offers a main bathroom, a second wc, plus 2nd shower with laundry, ducted evaporative air conditioning, Split system R C air Conditioning, ceiling fans, double width 4 car carport with drive through access to the rear yard leading to freestanding garage all secured behind an automated panel lift roller door. Resort style solar heated in ground swimming pool complimented with freestanding shelter set amidst lovingly tendered gardens incorporating an alfresco outdoor BBQ area, 2 x 1000 litre rain water tanks plus solar panels..
Expression Of Interest By 5th September 2022 at 5pm (unless Sold Prior)
For further details please phone Justin Gall on 0418 848 309 or 08 8333 0000.
Justin Gall Real Estate Pty Ltd
RLA 2074
